- Woonoppervlakte
- Circa 122 m²
- Perceeloppervlakte
- Circa 250 m²
- Bouwjaar
- Gebouwd in 1938
- Aantal kamers
- 5 kamers (4 slaapkamers)
Sfeervolle jaren ’30 tussenwoning met karakter, 4 slaapkamers, diepe tuin en tuinhuis.
Welkom aan de Bronkhorstweg in Velp!
Deze charmante tussenwoning ademt de sfeer van de jaren ’30, maar biedt tegelijk het comfort van nu. Met een lichte doorzonwoonkamer, gezellige leefkeuken, vier volwaardige slaapkamers én een heerlijke tuin met meerdere zitplekken is dit een woning waar u zich direct thuis zult voelen.
De ligging is prettig, rustig en met vrij uitzicht aan de voor- en achterzijde en alle voorzieningen binnen handbereik. Op korte afstand bevinden zich winkels, scholen en sportverenigingen in het centrum van Velp en het vestingstadje Grave. Ook de uitvalswegen richting Nijmegen, ’s-Hertogenbosch en Eindhoven zijn goed bereikbaar.
Indeling van de woning
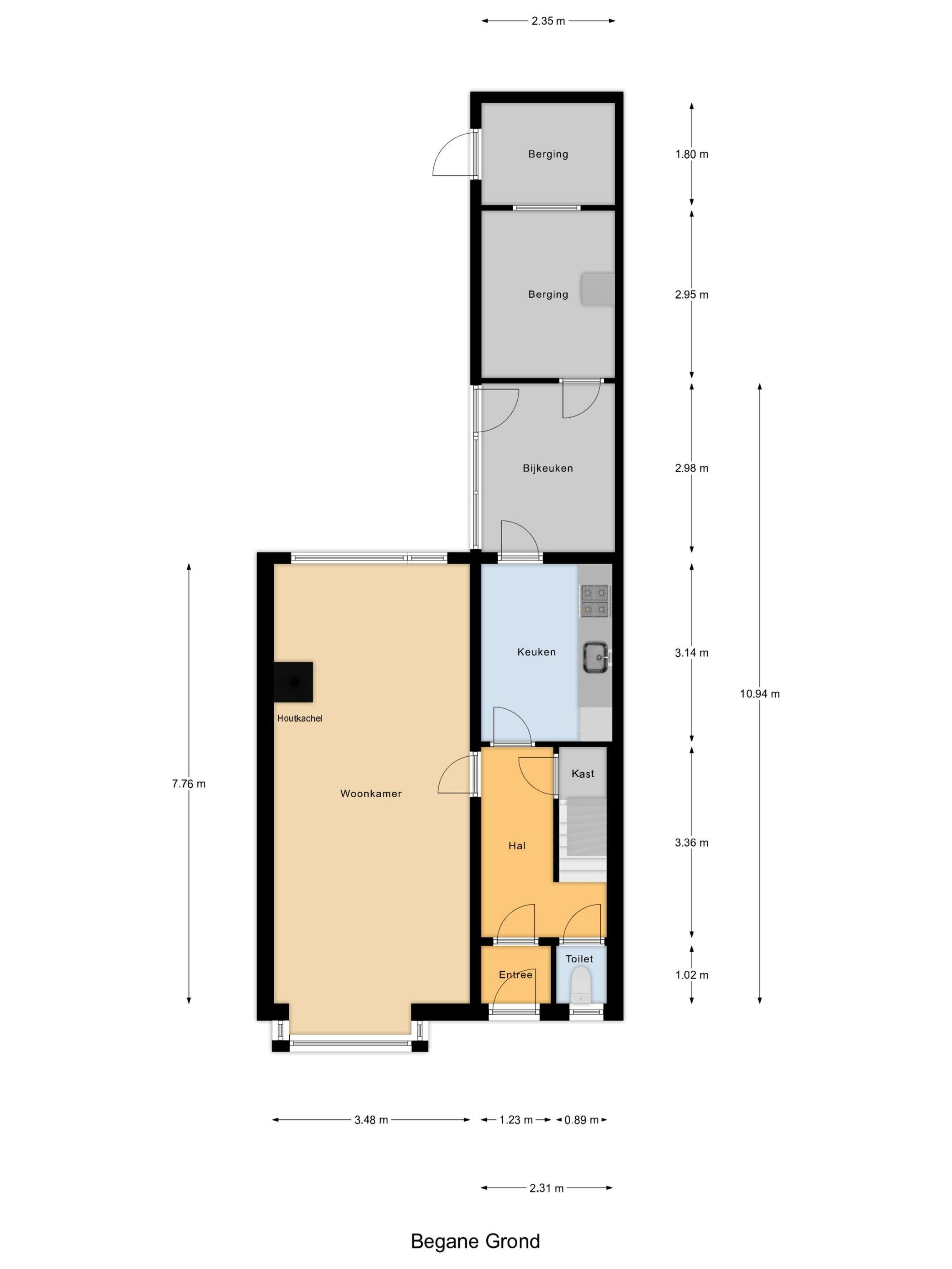
Begane grond:
Entree, hal met garderobe, lambrisering en fraaie toog voordeur, tweede hal met lambrisering, het toilet, de trapopgang en de trapkast met toegang naar de kelder (1.65 m hoog), mooi droog en voorzien van schappen en de meterkast met 6 groepen.
Aansluitend de zeer ruime en lichte doorzon woonkamer met sfeervolle houtkachel, mooi uitzicht op de achtertuin en aan de voorzijde de fraaie erker, de woonkamer is tevens voorzien van een balkenplafond en een pvc vloer.
Vanuit de hal toegang tot de leefkeuken met 4-pits gaskookplaat, afzuigkap, koelkast, vaatwasser en combimagnetron.
Gevolgd door de bijkeuken waar je ook heerlijk kunt zitten als het wat kouder is en de zon lekker naar binnen schijnt. Aansluitend de berging met een keukenblok.
Eerste verdieping:
Overloop met vaste kast, aan de voorzijde de ouderslaapkamer met vaste kast en naastgelegen de badkamer met douchecabine, wastafelmeubel, spiegelkast, toilet en wasopstelling.
De grootste slaapkamer is gelegen aan de achterzijde en voorzien van een vaste kast en een ruime dakkapel met kunststof kozijn, naastgelegen de derde slaapkamer eveneens met een vaste kast en kunststof dakkapel.
Tweede verdieping:
Ruime overloop met cv-opstelling Vaillant van 2012 Ecotec plus en de wasdroger-opstelling, aansluitend de mooie 4e slaapkamer met Veluxraam met zonverduistering en deze ruimte is volledig met houten schroten afgewerkt.
Tuin:
De voortuin is samengesteld uit een kleurrijke border met vaste planten en struiken aan weerszijde van het beklinkerde pad naar de voordeur en aan één zijde met siergrind en sierkeien, geheel ommuurd (gezamenlijk met de buren).
Achtertuin met groot terras aansluitend aan de woonkamer, stenen plantenbak met houten pergola, een afstapje naar de achtergelegen tuin met betegelde tuinpaden, gazon en een tweede terras aangekleed met siergrind en groene beplanting. De tuin wordt omringt door een groene haag enerzijds en een begroeide muur aan de overzijde. Aan de achterzijde een groene haag en het metalen hekje als toegang achterom.
De bijgebouwen bestaande uit het tuinhuis en de tweede berging maken het extra comfortabel.
Bijgebouwen:
De aangebouwde houten tweede berging (2.50 x 2.50 m), ideaal als fietsenhok is voorzien van elektra.
Het vrijstaande houten tuinhuis eveneens voorzien van elektra.
Overige informatie:
- Energielabel: C, geldig tot 08-07-2034
- Isolatie: Gedeeltelijke na-isolatie van de gevels en de vloer, plat dak is nageïsoleerd
- Kozijnen: Hout, dakkapel kunststof
- Beglazing: Dubbelglas behalve de berging en een dakraampje
- Dak: Dakkapel voorzien van nieuw bitumen dakbedekking, dak tuinkamer/berging in 2020 vernieuwd
- Cv-installatie: Vaillant 2012
- Mooie houtkachel blijft achter
- Warmwatervoorziening: Geiser Vaillant, bouwjaar waarschijnlijk rond 2008
- Voorzieningen: Glasvezel, tuinkraan achterzijde, stroomaansluiting bij de pergola
- Woonkamer: Spachtelputz wanden, balkenplafond en pvc-vloer (ondergelegen een parketvloer)
- Keuken: Novilon vloer, bouwjaar 1999 en in 2023 overgespoten
- Badkamer: bouwjaar 2011
- Kelder: 3.35 x 2.20 x 1.65
- Vloeren: Begane grondvloer is van beton en hout, verdiepingsvloeren zijn van hout
- Kruipruimte: Aanwezig bij de houtkachel maar niet toegankelijk
- Schilderwerk buiten: ± 2023 de begane grond, overige is bij gehouden
- Parkeergelegenheid: Openbaar parkeren
- Schoorsteen voorzien van nieuw lood en in 2025 opnieuw gevoegd
- Het is niet bekend, maar de mogelijkheid bestaat dat er onder de vloerbedekking in de keuken mogelijk
asbesthoudend materiaal aanwezig kan zijn Lees de volledige omschrijving
Overdracht
- Vraagprijs
- € 375.000 k.k.
- Status
- Verkocht onder voorbehoud
- Aanvaarding
- In overleg
Bouw
- Object type
- Eengezinswoning, tussenwoning
- Soort bouw
- Bestaande bouw
- Bouwjaar
- 1938
- Soort dak
- Samengesteld dak bedekt met bitumineuze dakbedekking en pannen
Oppervlakte en inhoud
- Woonoppervlakte
- 122 m²
- Perceeloppervlakte
- 250 m²
- Inhoud
- 446 m³
- Externe bergruimte
- 6 m²
Indeling
- Aantal kamers
- 5 kamers (4 slaapkamers)
- Aantal badkamers
- 1 badkamer en 1 apart toilet
- Badkamervoorzieningen
- Douche, toilet, en wastafelmeubel
- Aantal woonlagen
- 3 woonlagen en een kelder
Energie
- Energielabel
- C
- Energielabel registratie
- 12-07-2024
- Isolatie
- Dakisolatie, gedeeltelijk dubbel glas, muurisolatie en vloerisolatie
- Verwarming
- Cv-ketel en houtkachel
- Warm water
- Cv-ketel en geiser
- Cv ketel
- Vaillant (gas gestookt combiketel uit 2012, eigendom)
Buitenruimte
- Ligging
- In woonwijk en vrij uitzicht
- Tuin
- Achtertuin en voortuin
- Afmetingen achtertuin
- 117 m² (21,03 meter diep en 6,31 meter breed)
- ligging tuin
- Gelegen op het zuidwesten bereikbaar via achterom
Bergruimte
- Schuur / berging
- Vrijstaande houten berging
Parkeergelegenheid
- Soort parkeergelegenheid
- Openbaar parkeren
Energieverbruik in Velp (NB)
Energielabel deze woning
Energielabel C
Publicatie energielabel: 12-07-2024
Stroomverbruik per jaar
(Gemiddelde tussenwoning in Velp (NB))
Gasverbruik per jaar
(Gemiddelde tussenwoning in Velp (NB))
* Cijfers zijn afkomstig van het CBS en bedoeld als indicatie en kunnen verschillen voor deze woning
Indicatie hypotheeklasten
Eigen inleg:
Spaargeld / overwaarde
Rente:
Laagste 10-jaars rente
Laagste 10-jaars rente
2,9% - Centraal Beheer Groen L... - NHG
3,13% - Centraal Beheer Groen... - 80%
Laagste 20-jaars rente
3,29% - Centraal Beheer Groen... - NHG
3,52% - Centraal Beheer Groen... - 80%
Laagste 30-jaars rente
3,41% - Centraal Beheer Groen... - NHG
3,74% - Centraal Beheer Groen... - 80%
Hypotheek:
Bruto maandlasten: € 0 p/m
Netto maandlasten: € 0 p/m
Hoe berekenen we dit?
Het rentepercentage is gebaseerd op de laagste 10 jaars vaste rente voor één hypotheekdeel. De vermelde rente (2.9% met NHG) is gecontroleerd op 14-01-2026. Deze berekening is gebaseerd op een annuïteitenhypotheek die volledig wordt afgelost, waarbij de maandlasten gedurende de gehele looptijd gelijk blijven. De werkelijke rente en netto maandlasten kunnen variëren, afhankelijk van uw persoonlijke situatie en de hypotheekverstrekker. Raadpleeg een financieel adviseur voor een nauwkeurige berekening en advies. Aan deze berekening kunnen geen rechten worden ontleend; het dient enkel als indicatie.
Documentatie
Kadastrale kaart
Leefomgeving
Brochure
Plattegronden PDF
WOZ waarderapport
BAG uittreksel
Bezichtiging
Waardebepaling
Zoekopdracht
Alles downloaden
Zonnegrenzen bekijken
Op de kaart
Inwoners in Velp (NB)
Cijfers voor postcodegebied 5363
- Totaal aantal inwoners
- 1385 inwoners
- Mannen
- 55%
- Vrouwen
- 45%
Inwoners in Velp (NB)
Cijfers voor postcodegebied 5363
- tot 15 jaar
- 15%
- 15 tot 25 jaar
- 16%
- 25 tot 35 jaar
- 22%
- 45 tot 65 jaar
- 27%
- 65 en ouder
- 21%
Huishoudens in Velp (NB)
Cijfers voor postcodegebied 5363
- Eenpersoons zonder kinderen
- 27%
- Meerpersoons zonder kinderen
- 31%
- Huishoudens zonder kinderen
- 58%
Huishoudens in Velp (NB)
Cijfers voor postcodegebied 5363
- Huishoudens met één kind
- 5%
- Huishoudens met meerdere kinderen
- 37%
- Huishoudens met kinderen
- 42%
Woningen in Velp (NB)
Cijfers voor postcodegebied 5363
- Woningen voor 1945
- 23%
- Woningen tussen 1945 en 1965
- 10%
- Woningen tussen 1965 en 1975
- 20%
- Woningen tussen 1975 en 1985
- 6%
- Woningen tussen 1985 en 1995
- 9%
Woningen in Velp (NB)
Cijfers voor postcodegebied 5363
- Woningen tussen 1995 en 2005
- 8%
- Woningen tussen 2005 en 2015
- 6%
- Woningen na 2015
- 17%
- Huurwoningen
- 20%
- Koopwoningen
- 70%
Overige in Velp (NB)
Cijfers voor postcodegebied 5363
- Gemiddelde WOZ waarde
- € 347.000,-
- Personen onder de 65 met uitkering
- 8%
Overige in Velp (NB)
Cijfers voor postcodegebied 5363
- Adressen per km²
- 259
- Stedelijkheid (schaal 1 op 5)
- 20%
HW Makelaardij Wijchen
Indien u vragen heeft of u wilt een bezichtiging inplannen, dan kunt u gebruik maken van het formulier hiernaast. Er zal daarna op korte termijn contact met u worden opgenomen.
Contact opnemen
Over HW Makelaardij
HW Makelaardij staat garant voor een enthousiaste benadering, transparante communicatie en heldere afspraken. U kunt rekenen op onze persoonlijke aandacht en een actieve, deskundige begeleiding. Als u op zoek bent naar een makelaar die uw belangen vooropstelt, bent u bij ons aan het juiste adres. HW Makelaardij werkt snel en professioneel!
Onze sterke punten zijn:
- Dankzij onze kleinschalige portefeuille kunnen wij u volop persoonlijke aandacht en maatwerkadvies bieden.
- Wij bieden scherpe courtagetarieven en een aantrekkelijk uurtarief.
- U kunt rekenen op onze intensieve begeleiding gedurende het hele aan- en verkooptraject.
- Met onze uitgebreide (juridische) kennis houden wij u volledig geïnformeerd over alle aspecten van het aan- en verkopen van een woning.
- Wij bieden een uitgebreid scala aan diensten.
Of u nu een huis wilt kopen, verkopen of de actuele marktwaarde van uw woning wilt weten, wij nodigen u van harte uit voor een vrijblijvend gesprek bij ons op kantoor in Balgoij (Wijchen) of bij u thuis.
Nieuwste reviews
-
Bas van den Hoogen
Een toegankelijke en prettige makelaar met oog voor de klant; de klantvriendelijkheid en betrokkenheid maakten het traject zeer aangenaam.
-
Dokter Kanterslaan 177
In 2019 verkocht ik binnen 2 weken, succesvol mijn woning in Wijchen. Toen mijn moeder haar woning in Grave te koop wilde gaan zetten was da...
-
Marskramer 117
Ze hebben kennis van zaken en Mike denkt met je mee. Bij vragen kan je hem altijd bereiken/raadplegen.